Chantiers \ 07.07.2023
S'inscrire
Envoyer mon devis
Chantiers \ 07.07.2023
S'inscrire
Travaux à réaliser
Moustiquaire 1.00
Tous types de moustiquaires. Conditions à voir avec l'entreprise.
[version française ci-dessous]
Guten Tag,
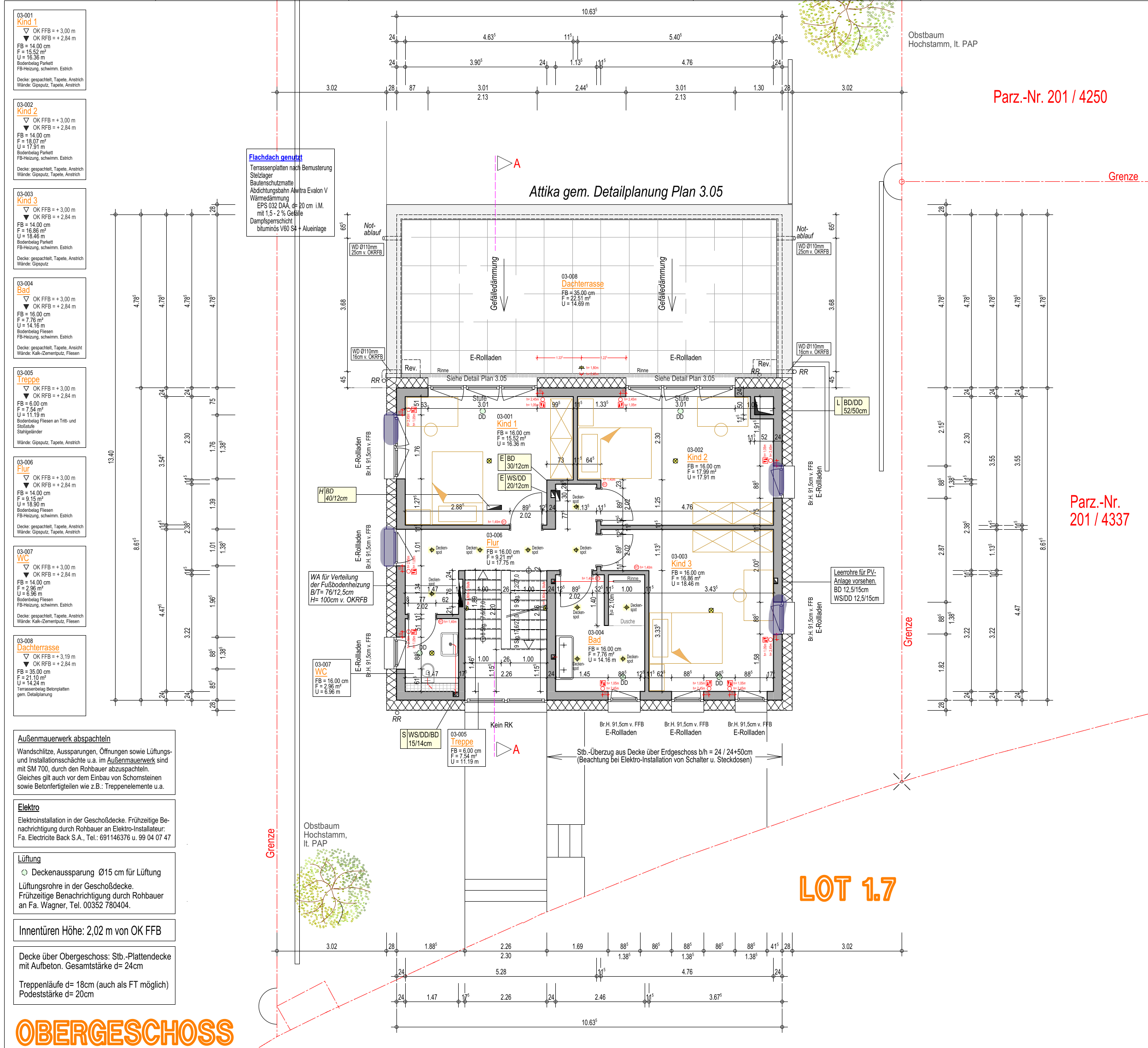
wir würden gerne 8 Fenster mit Fliegengitter versehen, dabei handelt es sich bei einer um ein bodentiefes Fenster, bzw. Hebe/-Schiebeelement - im ersten Plan mit einer 2 angemerkt (s. Anhänge).
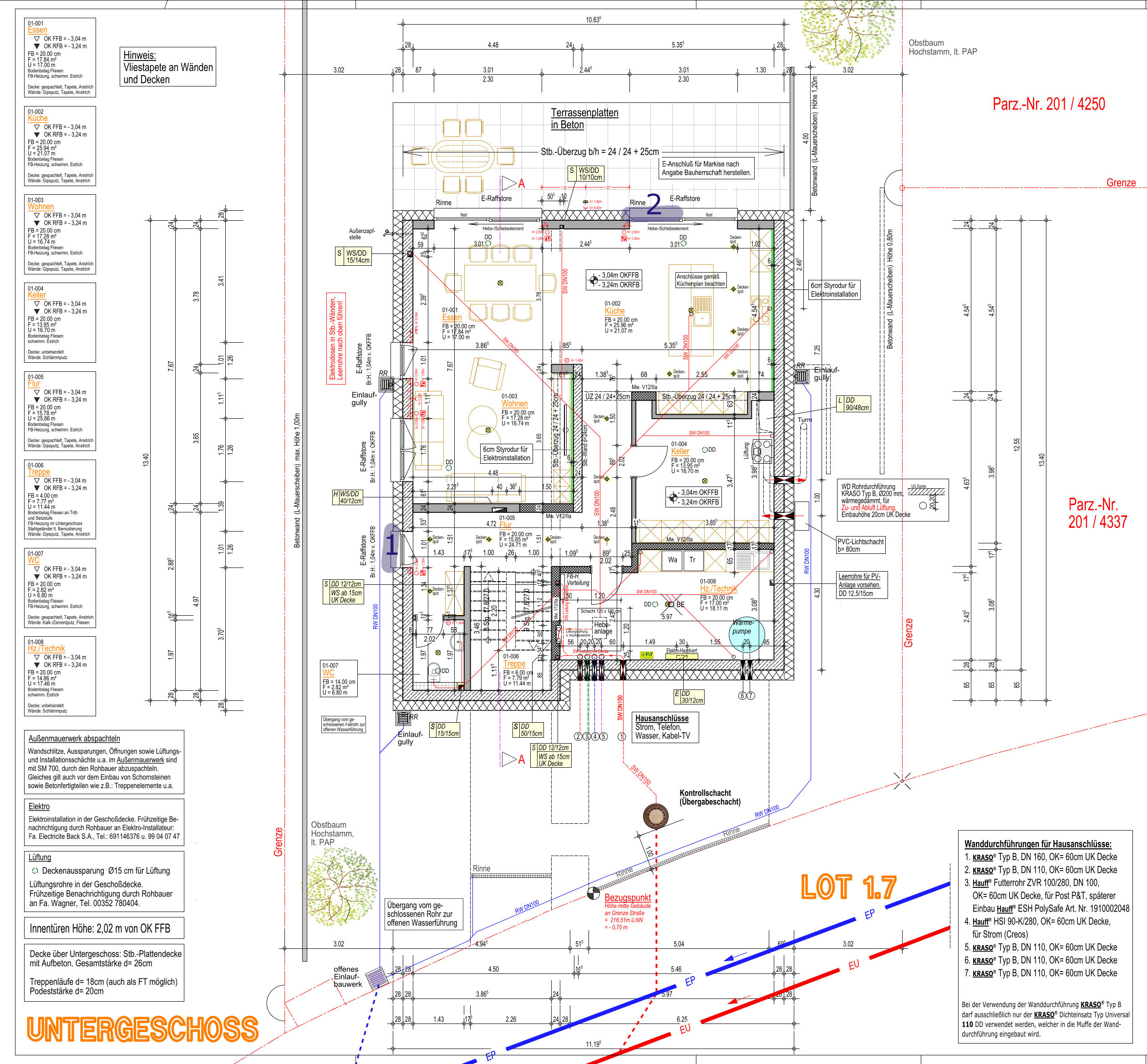
2 von 8 Fenster sind nicht "alleinstehend" (s. angehängt Bilder Fliegengitter_2 und _3).
1x Hebe-/Schiebeelement L:1,50 m ; H: ca. 2,50 m
7x Fenster: L:1 m : H: ca. 1.50
Bei weiteren Fragen stehe ich Ihnen natürlich zur Verfügung.
------------
Bonjour,
Nous aimerions installer des moustiquaires sur 8 fenêtres, dont l'une est une porte-fenêtre de plain-pied (élément levant coulissant), indiqué avec un 2 sur le premier plan (voir la pièce jointe Fliegengitter_1).
2 des 8 fenêtres ne sont pas "indépendantes" (voir images jointes Fliegengitter_2 et _3).
1x levant coulissant : longueur : 1,50 m ; Hauteur : environ 2 m
7x fenêtres : longueur : 1 m ; Hauteur : environ 1,50 m
Si vous avez d'autres questions, n'hésitez pas à me contacter.
Vielen Dank im Voraus // Un grand merci d'avance.
Beste Grüße // Meilleures salutations,
Catherine Braun
Guten Tag,
wir würden gerne 8 Fenster mit Fliegengitter versehen, dabei handelt es sich bei einer um ein bodentiefes Fenster, bzw. Hebe/-Schiebeelement - im ersten Plan mit einer 2 angemerkt (s. Anhänge).
2 von 8 Fenster sind nicht "alleinstehend" (s. angehängt Bilder Fliegengitter_2 und _3).
1x Hebe-/Schiebeelement L:1,50 m ; H: ca. 2,50 m
7x Fenster: L:1 m : H: ca. 1.50
Bei weiteren Fragen stehe ich Ihnen natürlich zur Verfügung.
------------
Bonjour,
Nous aimerions installer des moustiquaires sur 8 fenêtres, dont l'une est une porte-fenêtre de plain-pied (élément levant coulissant), indiqué avec un 2 sur le premier plan (voir la pièce jointe Fliegengitter_1).
2 des 8 fenêtres ne sont pas "indépendantes" (voir images jointes Fliegengitter_2 et _3).
1x levant coulissant : longueur : 1,50 m ; Hauteur : environ 2 m
7x fenêtres : longueur : 1 m ; Hauteur : environ 1,50 m
Si vous avez d'autres questions, n'hésitez pas à me contacter.
Vielen Dank im Voraus // Un grand merci d'avance.
Beste Grüße // Meilleures salutations,
Catherine Braun
Date de début souhaitée : Non renseignée
Budget : Non renseigné
Commune : Manternach
Village : Non renseigné
Demandes similaires
Contactez cette personne pour lui envoyer votre devis.
Connectez-vous à votre compte entreprise ou
inscrivez-vous pour accéder aux coordonnées de ce client.
inscrivez-vous pour accéder aux coordonnées de ce client.
