Chantiers \ 11.01.2026
S'inscrire
Envoyer mon devis
Chantiers \ 11.01.2026
S'inscrire
Travaux à réaliser
Chauffe-eau 1.00
Tous types de chauffe-eau. Conditions à voir avec l' entreprise
Pompe à chaleur 1.00
Tous types d'installation de pompe à chaleur. Conditions à voir avec l´entreprise.
VMC 1.00
Tous types d'installation de système de ventilation. Conditions à voir avec l'entreprise
Bonjour,
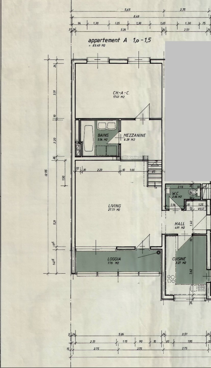
Je suis propriétaire occupant d’un appartement de 83 m² situé à Remich et je souhaite obtenir un devis pour un projet de rénovation énergétique.
Le projet concerne :
1. Chauffage :
• Installation d’une PAC air/air bi-split
• 1 unité intérieure dans le séjour (~27 m²)
• 1 unité intérieure dans la chambre (~17 m²)
• Groupe extérieur en loggia
2. Eau chaude sanitaire :
• Remplacement de deux chauffe-eau instantanés électriques
• Installation d’un boiler thermodynamique central (200–250 L)
• Raccordement salle de bain + cuisine
3. Ventilation :
• Installation d’une VMC simple flux hygroréglable
• Bouches : cuisine, salle de bain, WC
Informations sur le logement :
• Appartement 83 m², immeuble 1986
• Fenêtres double vitrage
• Isolation existante mais faible
• Chauffage électrique ancien supprimé
Je souhaite :
• Un devis détaillé par mail
• Les marques proposées
• Les délais d’intervention
• Les conditions de garantie et d’entretien
Les travaux sont prévus après validation d’un audit énergétique officiel.
Je reste à votre disposition pour une visite sur place.
Je suis propriétaire occupant d’un appartement de 83 m² situé à Remich et je souhaite obtenir un devis pour un projet de rénovation énergétique.
Le projet concerne :
1. Chauffage :
• Installation d’une PAC air/air bi-split
• 1 unité intérieure dans le séjour (~27 m²)
• 1 unité intérieure dans la chambre (~17 m²)
• Groupe extérieur en loggia
2. Eau chaude sanitaire :
• Remplacement de deux chauffe-eau instantanés électriques
• Installation d’un boiler thermodynamique central (200–250 L)
• Raccordement salle de bain + cuisine
3. Ventilation :
• Installation d’une VMC simple flux hygroréglable
• Bouches : cuisine, salle de bain, WC
Informations sur le logement :
• Appartement 83 m², immeuble 1986
• Fenêtres double vitrage
• Isolation existante mais faible
• Chauffage électrique ancien supprimé
Je souhaite :
• Un devis détaillé par mail
• Les marques proposées
• Les délais d’intervention
• Les conditions de garantie et d’entretien
Les travaux sont prévus après validation d’un audit énergétique officiel.
Je reste à votre disposition pour une visite sur place.
Date de début souhaitée : Non renseignée
Budget : Non renseigné
Commune : Remich
Village : Non renseigné
Demandes similaires
Contactez cette personne pour lui envoyer votre devis.
Connectez-vous à votre compte entreprise ou
inscrivez-vous pour accéder aux coordonnées de ce client.
inscrivez-vous pour accéder aux coordonnées de ce client.
