Chantiers \ 16.09.2025
S'inscrire
Envoyer mon devis
Chantiers \ 16.09.2025
S'inscrire
Travaux à réaliser
Installation WC
Tous types d'installations de WC. Conditions à voir avec l'entreprise
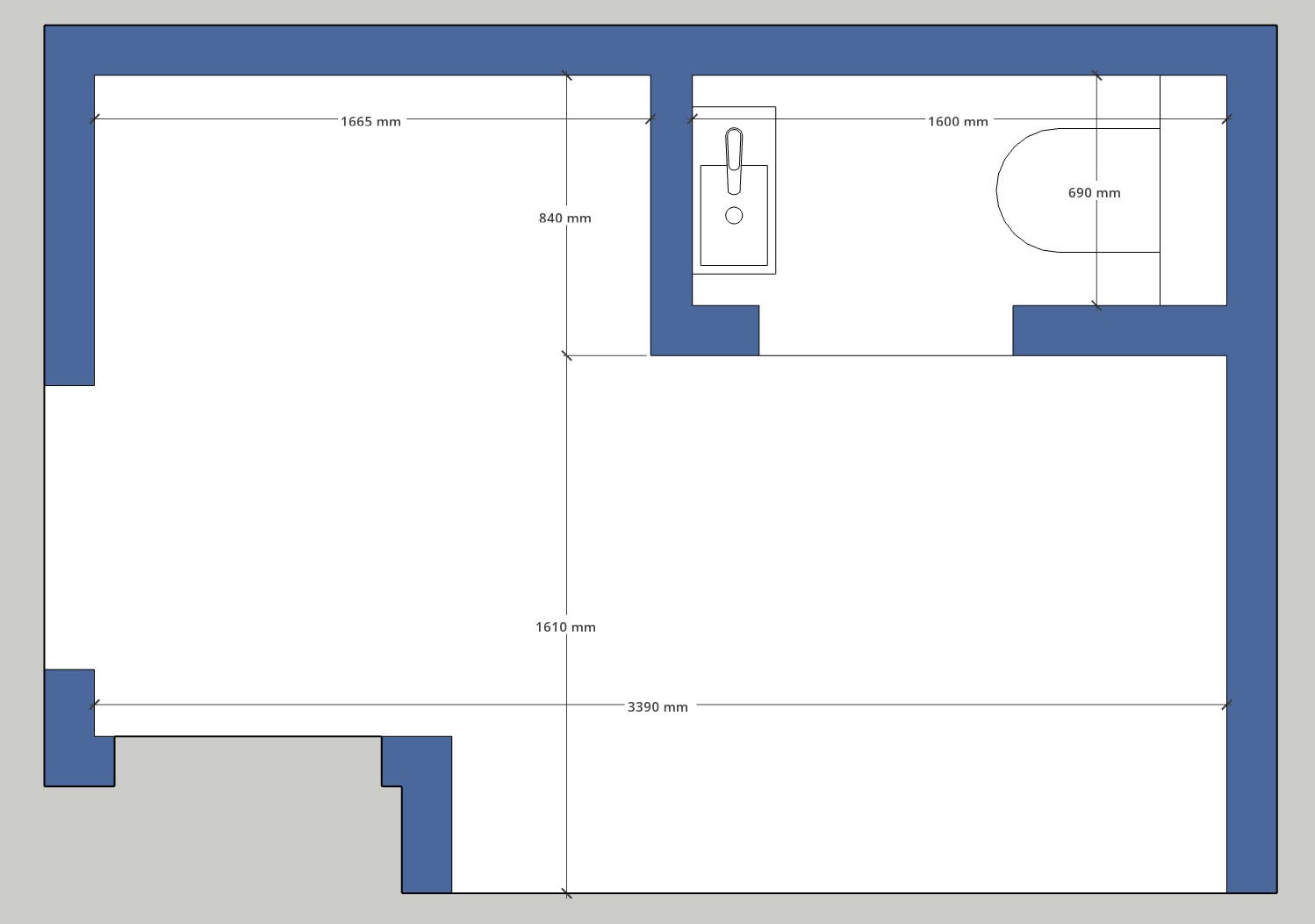
We would like to create a small WC in the entrance/vestibule area of our house in Bettembourg.
The existing wardrobe/vestibule space will be divided into two:
A partition wall will be built to separate the new WC.
A new door will be created from the corridor side for the WC entrance.
Contractors are welcome to visit the site to assess the work and provide an offer.
Location: Bettembourg, Luxembourg.
The existing wardrobe/vestibule space will be divided into two:
A partition wall will be built to separate the new WC.
A new door will be created from the corridor side for the WC entrance.
Contractors are welcome to visit the site to assess the work and provide an offer.
Location: Bettembourg, Luxembourg.
Date de début souhaitée : 28.09.2025
Budget : 5000€
Commune : Bettembourg
Village : Non renseigné
Demandes similaires
Contactez cette personne pour lui envoyer votre devis.
Connectez-vous à votre compte entreprise ou
inscrivez-vous pour accéder aux coordonnées de ce client.
inscrivez-vous pour accéder aux coordonnées de ce client.
