Chantiers \  06.06.2025
				
									
						 S'inscrire
					
							
							     
					                                     
				 
			  
			     
		
	 
					Chantiers \  06.06.2025
				
									
						 S'inscrire
					
							Travaux à réaliser
Peinture
Tous type de travaux de peinture intérieure. Conditions à voir avec l'entreprise
                                                               
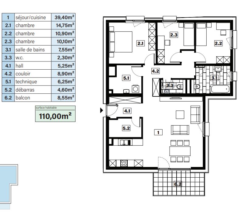
            							J'ai récemment acheté un appartement. Avant d'emménager, il doit cependant être repeint.
            						
            					Date de début souhaitée : Non renseignée
Budget : Non renseigné
Commune : Kehlen
Village : Non renseigné
Demandes similaires
								Contactez cette personne pour lui envoyer votre devis.                                 
							
							                        
								Connectez-vous à votre compte entreprise ou 
inscrivez-vous pour accéder aux coordonnées de ce client.
						inscrivez-vous pour accéder aux coordonnées de ce client.
 
                     
               
                 
               
 
                            