Chantiers \ 18.12.2024
S'inscrire
Chantiers \ 18.12.2024
S'inscrire
Travaux à réaliser
Tableau électrique
Tous types d'installation de tableau électrique. Conditions à voir avec l'entreprise
Installation électrique ou informatique
Tous types d'installation électrique ou informatique. Conditions à voir avec l'entreprise
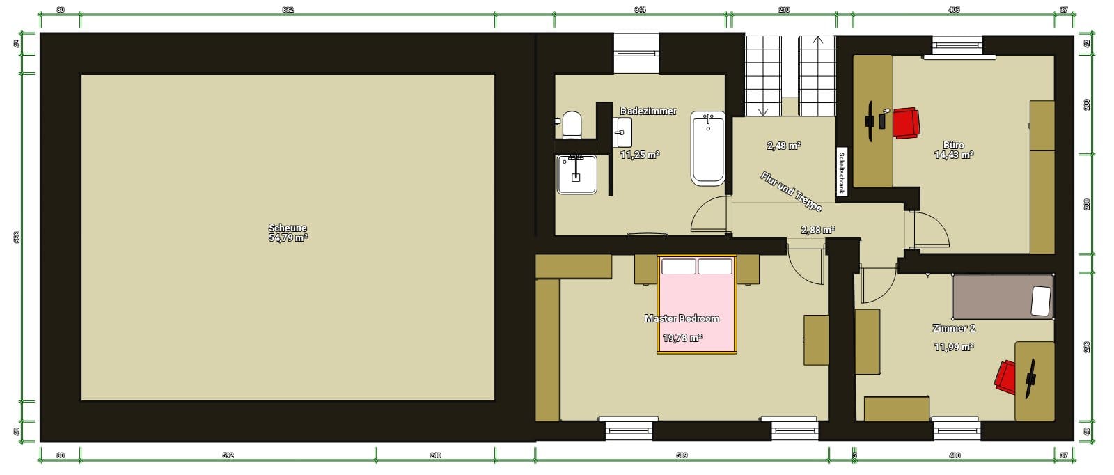
Je rénove un bâtiment ancien. Toute l'électricité de la maison ainsi que les armoires électriques doivent être rénovées. Je cherche une entreprise avec laquelle je peux entreprendre ce projet. Les plans en annexe doivent donner une idée générale de l'ampleur des travaux. La maison est encore à l'état brut.
Date de début souhaitée : Non renseignée
Budget : Non renseigné
Commune : Putscheid
Village : Non renseigné
Demandes similaires
Contactez cette personne pour lui envoyer votre devis.
Connectez-vous à votre compte entreprise ou
inscrivez-vous pour accéder aux coordonnées de ce client.
inscrivez-vous pour accéder aux coordonnées de ce client.
