Chantiers \ 12.03.2024
S'inscrire
Envoyer mon devis
Chantiers \ 12.03.2024
S'inscrire
Travaux à réaliser
Wärmepumpe
Alle Arten von Wärmepumpen. Die Bedingungen, mit dem Unternehmen vereinbaren.
Pompe à chaleur pour pavillon Cadolto
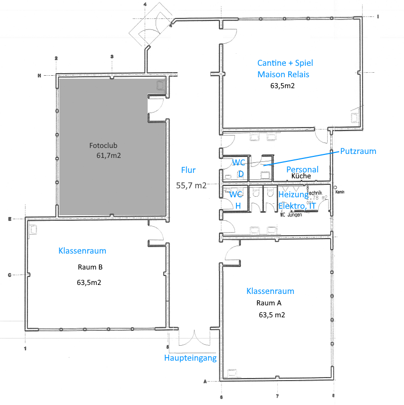
La commune de Schuttrange souhaite remplaçer une vieille chaudière en gas par une pompe à chaleur. Il s'agit d'un bâtiment préfabriqué (Containers) avec 4 salles de classe. Le bâtiment est actuellement utilisé comme maison relais. Les radiateurs sont assez large, la température (Vorlauftemperatur) requise en hiver est vers 60°C.
Le bâtiment se trouve à 2, rue de Beyren L-5376 Munsbach.
La commune de Schuttrange souhaite remplaçer une vieille chaudière en gas par une pompe à chaleur. Il s'agit d'un bâtiment préfabriqué (Containers) avec 4 salles de classe. Le bâtiment est actuellement utilisé comme maison relais. Les radiateurs sont assez large, la température (Vorlauftemperatur) requise en hiver est vers 60°C.
Le bâtiment se trouve à 2, rue de Beyren L-5376 Munsbach.
Date de début souhaitée : 01.09.2024
Budget : 20000€
Commune : Schuttrange
Village : Non renseigné
Demandes similaires
Contactez cette personne pour lui envoyer votre devis.
Connectez-vous à votre compte entreprise ou
inscrivez-vous pour accéder aux coordonnées de ce client.
inscrivez-vous pour accéder aux coordonnées de ce client.
