Chantiers \ 24.02.2026
S'inscrire
Envoyer mon devis
Chantiers \ 24.02.2026
S'inscrire
Travaux à réaliser
Malerarbeiten 160.00m2 (Schätzung)
Alle Arten von Malereiarbeiten. Die Bedingungen, mit dem Unternehmen vereinbaren.
Bonjour,
Je me permets de vous contacter dans le cadre d’une maison neuve prochainement réceptionnée pour laquelle nous souhaitons obtenir des devis comparatifs pour les travaux de peinture intérieure.
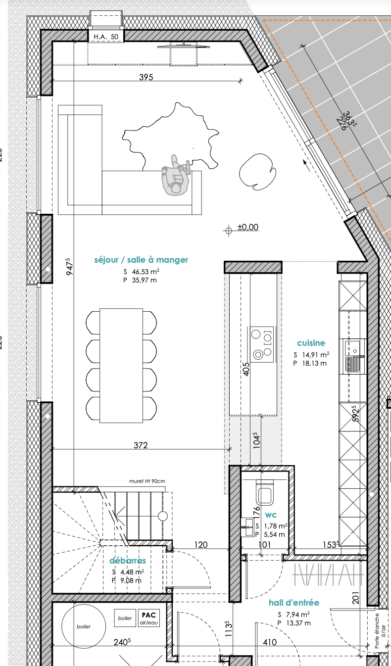
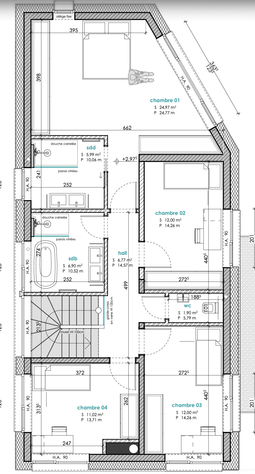
Les murs et plafonds sont en plâtre finition Q2.
La hauteur sous plafond est de 2,60 m au rez-de-chaussée et 2,50 m à l’étage.
Nous souhaiterions une offre incluant des prestations équivalentes à celles prévues initialement par le promoteur, à savoir :
• Préparation complète des supports
• Pose d’un variovlies sur les murs
• Peinture des murs et plafonds
• Peinture des murs en plâtre, plaques de plâtre et autres supports préparés
• Application d’une peinture latex mate en deux couches dans une teinte claire
• Réalisation des joints acryliques aux raccords murs/plafonds et autour des chambranles
• Toutes sujétions nécessaires à la bonne exécution des travaux
Surfaces estimées:
* Murs : environ 435 à 460 m²
* Plafonds : environ 165 m²
Particularités des pièces d’eau:
* Salle de bain principale : peinture plafond uniquement
* Salle de douche : plafond + environ la moitié des murs
* WC : murs et plafonds
Afin de pouvoir comparer correctement les offres, pourriez-vous idéalement préciser dans votre devis :
* les surfaces retenues pour les murs et plafonds
* le prix séparé murs / plafonds
* ce qui est inclus ou non dans votre prestation
Les plans peuvent bien entendu être transmis si nécessaire.
Je me permets de vous contacter dans le cadre d’une maison neuve prochainement réceptionnée pour laquelle nous souhaitons obtenir des devis comparatifs pour les travaux de peinture intérieure.
Les murs et plafonds sont en plâtre finition Q2.
La hauteur sous plafond est de 2,60 m au rez-de-chaussée et 2,50 m à l’étage.
Nous souhaiterions une offre incluant des prestations équivalentes à celles prévues initialement par le promoteur, à savoir :
• Préparation complète des supports
• Pose d’un variovlies sur les murs
• Peinture des murs et plafonds
• Peinture des murs en plâtre, plaques de plâtre et autres supports préparés
• Application d’une peinture latex mate en deux couches dans une teinte claire
• Réalisation des joints acryliques aux raccords murs/plafonds et autour des chambranles
• Toutes sujétions nécessaires à la bonne exécution des travaux
Surfaces estimées:
* Murs : environ 435 à 460 m²
* Plafonds : environ 165 m²
Particularités des pièces d’eau:
* Salle de bain principale : peinture plafond uniquement
* Salle de douche : plafond + environ la moitié des murs
* WC : murs et plafonds
Afin de pouvoir comparer correctement les offres, pourriez-vous idéalement préciser dans votre devis :
* les surfaces retenues pour les murs et plafonds
* le prix séparé murs / plafonds
* ce qui est inclus ou non dans votre prestation
Les plans peuvent bien entendu être transmis si nécessaire.
Date de début souhaitée : 01.06.2026
Budget : Non renseigné
Commune : Kehlen
Village : Non renseigné
Demandes similaires
Contactez cette personne pour lui envoyer votre devis.
Connectez-vous à votre compte entreprise ou
inscrivez-vous pour accéder aux coordonnées de ce client.
inscrivez-vous pour accéder aux coordonnées de ce client.
